Chroniques d'un projet de rénovation : choisir notre entrepreneur
Par Léa Plourde-Archer
Modifié le 8 novembre 2023

Cela fait maintenant environ 1 mois et demi que nous travaillons plus sérieusement pour faire avancer notre projet de rénovation. En fait, il est important que les travaux débutent en janvier et soient terminés vers le début du mois de mars, donc nous n'avons plus de temps à perdre!
Même s'il reste 2 mois avant le début officiel des travaux, nous devons nous assurer que tout soit prêt à temps et qu'il n'y ait pas de délais potentiels une fois que les étapes concrètes du projet seront lancées.
La bonne nouvelle, c'est que nous avons choisi l'entrepreneur à qui nous allons confier la tâche! Dans cet article, vous apprendrez comment nous avons choisi cet entrepreneur et quels ont été nos critères.
Si vous n'avez pas encore lu les autres articles de cette série, cliquez ici.
Comment nous avons choisi l'entrepreneur pour notre projet de rénovation
Le processus pour trouver un entrepreneur avec la plateforme de SoumissionRenovation.ca est très simple. Il suffit de remplir le formulaire en décrivant les grandes lignes du projet, tout en mentionnant quelques informations utiles comme le budget approximatif et les dates souhaitées. Ensuite, le projet est envoyé aux entrepreneurs faisant partie du réseau et ceux qui sont disponibles et intéressés acceptent le projet.
Nous avons eu deux entrepreneurs qui ont voulu soumissionner pour notre projet. En général, la plateforme vise à en référer entre 2 et 3 afin que l'on puisse comparer les rencontres et les soumissions. Dès que les entrepreneurs acceptent le projet, le client (nous) reçoit un courriel avec le nom de l'entreprise et les informations que l'entrepreneur a mises dans son profil, notamment des photos, des exemples de services offerts et des liens vers leurs sites web et pages Facebook, s'il y a lieu.

Notre pièce débarras où nous entreposons les meubles que nous allons donner et les boites qui serviront pour ranger nos biens.
Les rencontres avec les entrepreneurs
Très rapidement, nous avons organisé des rencontres en personne (avec toutes les mesures de distanciation respectées) pour que les entrepreneurs puissent évaluer le projet en personne. Comme il s'agit de travaux d'envergure, il était plus difficile d'organiser des évaluations à distance.
Les deux rencontres se sont bien déroulées. Dans un cas, la rencontre a duré environ 45 minutes et nous avons regardé chaque pièce avec l'entrepreneur en parlant des différentes options et en regardant le plan créé par la designer d'intérieur et sa collègue.
La deuxième rencontre a été plus expéditive, mais tout de même très intéressante. Nous avons apprécié le fait d'avoir un autre point de vue par rapport à certains aspects du projet.
Une fois les rencontres terminées, on devait attendre de recevoir les soumissions détaillées pour pouvoir bien comparer l'offre des deux entrepreneurs.
Comment nous avons analysé les soumissions
En toute transparence, nous n'avons pas reçu deux soumissions. Suite à la rencontre en personne, le deuxième entrepreneur nous a annoncé qu'il n'avait finalement pas assez de temps pour effectuer les travaux avant le mois de mars (un critère essentiel pour nous). Par conséquent, nous avons reçu une seule soumission.
Déjà, nous avions un léger penchant pour le premier entrepreneur qui avait davantage pris le temps de regarder les détails du projet avec nous, donc cela a confirmé notre décision. Il faut préciser que si la soumission que ce dernier avait fournie n'était pas assez claire ou ne convenait pas à notre budget, nous aurions peut-être voulu rencontrer un troisième entrepreneur afin de pouvoir comparer.
L'entrepreneur avec lequel nous avons signé un contrat a donc présenté un premier devis qui n'était pas excessivement détaillé, mais qui présentait un montant pour chaque type de service offert, ainsi que le prix total selon les travaux prévus actuellement. Nous sommes conscients que ce montant pourra varier au fil des travaux, alors que l'on est mis face à la réalité des travaux. Toutefois, cela nous permet de confirmer que l'on va pouvoir respecter notre budget.
Voici un aperçu du type de soumission que nous avons reçu (nous aborderons les montants dans un autre article):

Est-ce qu'on a payé un dépôt?
Pour l'instant, je ne vais pas vous partager de chiffres précis par rapport aux dépenses de travaux, car ceux-ci sont encore assez vagues, mais d'ici la fin du projet, vous pourrez avoir une idée du budget que nous avons consacré à cette grande transformation.
L'entrepreneur a bien sûr exigé qu'on lui fournisse un montant pour le dépôt. Il a demandé l'équivalent de 20% du prix total écrit dans la soumission. Ce montant sert à réserver notre place dans son horaire et à couvrir certaines dépenses qu'il devra faire avant même le début des travaux.
Pour plus d'informations au sujet des dépôts, voici un article à ne pas manquer:
Entrepreneur général ou entrepreneur spécialisé?
C'est une question très intéressante et dans le cadre de ce projet, nous avons vite déterminé que nous préférions faire appel à un entrepreneur général.
L'entrepreneur général est une sorte de chef d'orchestre qui organise et chapeaute les travaux. Il s'assure que toutes les étapes s'enchainent de manière logique et il a dans son carnet d'adresses des noms d'entrepreneurs pour la plupart des types de travaux.
Si l'on avait plutôt opté pour des entrepreneurs spécialisés, il aurait fallu que nous agissions comme gestionnaires du chantier, en organisant l'horaire, le budget et en contactant nous même les entrepreneurs.
Pour un projet de grande envergure, nous estimions donc qu'il était bien plus simple de confier la tâche à un entrepreneur général, surtout étant donné que les travaux doivent durer pas plus de deux mois! Si on avait eu un échéancier moins serré, peut-être qu'on aurait pu être tenté le tout gérer par nous-même, mais on a préféré opter pour une solution proche du clé-en-main. C'est légèrement plus coûteux, mais comme on va épargner du temps, le montant excédentaire que l'on va devoir payer en vaudra la peine à notre avis.
Bien sûr, nous allons quand même avoir plusieurs responsabilités, notamment l'achat de certains matériaux et la préparation du logement avant les travaux. Toutefois, ça reste plus simple que si nous avions voulu gérer le chantier de A à Z.
Pour en savoir plus sur les différences entre les entrepreneurs généraux et les entrepreneurs spécialisés, c'est par ici!
Les autres choses que nous avons réglées dernièrement
Outre le fait de trouver notre entrepreneur, nous avons aussi coché plusieurs autres cases dans notre liste de choses à faire avant le début des travaux. Voici les points les plus importants:
Trouver un logement
Pendant les rénovations, nous allons devoir habiter ailleurs, car c'est notre logement au complet qui sera transformé par l'entrepreneur et son équipe! Il serait donc impossible de demeurer sur place, à moins d'accepter de vivre dans un chantier. Avec trois chats et un emploi à distance, cela n'est tout simplement pas possible.
Nous avons donc cherché un endroit qui va nous accueillir pendant les 2 mois prévus de la durée des travaux. La recherche n'était pas très simple, car nous devions trouver un logement où les animaux étaient permis. En ville, ce genre de critère n'est pas toujours simple à remplir. En effet, bien des propriétaires interdissent les animaux, de peur que ceux-ci créent des dommages permanents aux meubles et aux surfaces.
Par chance, nous avons pu trouver un appartement avec une propriétaire flexible et accueillante! Nous allons donc pouvoir déménager dans un logement meublé, situé entre notre condo et le bureau. Comme j'avais très hâte de pouvoir régler cette question de logement, me voilà rassurée!

2 de nos 3 chats, qui ne savent pas ce qui les attend
Finaliser les plans avec les designers
Dans l'article précédent, nous avons parlé de notre rencontre avec la designer d'intérieur Valérie Bourget et sa collègue Mathilde Robin. À ce jour, nous sommes encore en train de correspondre environ une fois par semaine avec l'équipe, afin de finaliser les plans, les choix de matériaux et les réponses aux questions que nous pourrions avoir avant le début des travaux.
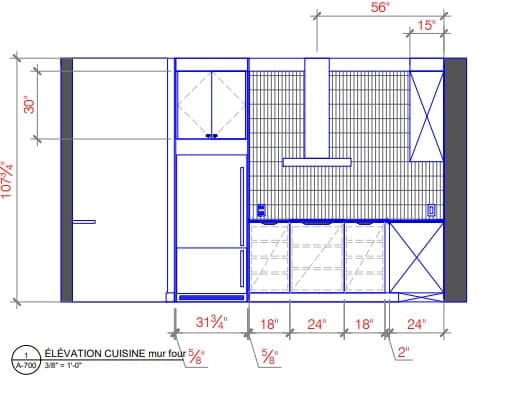
Par exemple, les filles ont préparé un plan d'élévations pour la cuisine et la salle de bain afin de simplifier l'achat des meubles et matériaux pour ces pièces.
Nous avons aussi pu déterminer quelques changements nécessaires au plan électrique, ce qui sera très utile au moment de fournir les plans finaux à l'entrepreneur.

Source: une partie du plan d'élevation de cuisine créé par les designers chez Vivre Autrement
Effectuer quelques achats et créer des listes
Même si j'ai ralenti la cadence concernant les achats, surtout pour les meubles et accessoires décoratifs, j'ai acheté quelques jolis items comme des affiches qui serviront à décorer la toilette et la chambre à coucher.
Nous avons aussi créé plusieurs listes qui serviront à organiser nos prochains achats:
Liste de choses à donner (meubles et électros)
Liste de matériaux à acheter
Liste de choses à acheter chez IKEA
Liste de choses qui restent à faire de mon côté

Notre deuxième pièce qui sert de débarras, avec entre-autres les objets et matériaux que nous allons apporter à l'écocentre très bientôt.
Quelles sont les prochaines étapes ?
Vous avez peut-être entendu parler de la pénurie de matériaux de construction qui sévit en ce moment. On voit beaucoup de ruptures de stock chez les quincailleries et les grands magasins de meubles comme IKEA.
Par conséquent, comme nous voulons éviter les délais une fois que les travaux ont commencé, nous voulons acheter certains matériaux essentiels dont les armoires de cuisine, les matériaux de plancher et de dosserets en avance pour être certain de tout avoir à temps.
Dans le prochain article, je compte vous parler de notre rencontre avec un ingénieur.
Image de couverture: une partie du plan que je me suis amusée à créer dans le jeu Les Sims
Obtenir des soumissions pour votre projet de rénovation de maison
SoumissionRenovation.ca peut vous aider dans vos démarches pour obtenir des soumissions pour votre projet de rénovation de maison. En nous parlant de votre projet, nous vous mettrons gratuitement en contact avec les personnes-ressources adéquates. Vous n’avez qu’à remplir notre formulaire (en quelques minutes seulement) et vous pourrez recevoir des soumissions d’entreprises spécialisées.
Composez le 1 855 239-7836 pour parler avec un de nos représentants au service à la clientèle.
Vous cherchez autre chose?
Articles similaires
Actualités du secteur, témoignages, technologies et autres ressources.

Léa Plourde-Archer
•08 nov. 2023
25 Août 2011, on reçoit enfin les clés de notre condo tant convoité. Ce condo est situé dans un vieil immeuble du quartier de Rosemont (Montréal), construit en 1926. Rien à voir donc avec ces blocs modernes où l'on peut choisir les finitions et où la construction date de moins de 2 ans.

Léa Plourde-Archer
•08 nov. 2023
C'est fait! Le premier coup de massue a été donné le mercredi 6 janvier dernier et le grand projet de transformation a enfin pu commencer. Nous avions déménagé vers notre logement temporaire la veille, tout en étant un peu fébriles de découvrir les annonces faites par le gouvernement le lendemain. Il y avait en effet des rumeurs comme quoi le secteur de la construction allait peut-être devoir être mis en pause pendant quelques semaines.

Karine Dutemple
•06 mars 2026
Le garage est un espace extrêmement pratique, servant à la fois de lieu de rangement et d'atelier pour petits projets. Si vous envisagez de faire construire un garage prochainement, quelles sont les étapes à suivre pour mener à bien ce projet ? Quels éléments devez-vous considérer pour maximiser l'utilité et la fonctionnalité de votre nouveau garage ? Combien vous coûtera ce projet? Voici un guide pour vous accompagner dans les différentes étapes de la construction de votre garage, afin de créer un espace adapté à vos besoins.

Équipe éditoriale
•08 nov. 2023
La hotte de cuisine est un appareil indispensable pour évacuer les odeurs et les produits de combustion des cuisines. Elle offre une multitude d'options et de fonctionnalités pour s'adapter à vos besoins et à vos envies.

Équipe éditoriale
•08 nov. 2023
Au Québec, les salles de bain ne sont pas reconnues pour être très spacieuses, pourtant cette pièce est avant tout un lieu de détente où il est essentiel de se sentir bien. En optimisant l’espace de votre salle de bain, vous pouvez profiter d’un espace plus épuré, en misant notamment sur les meubles de rangement. D’ailleurs, les magasins d’ameublement regorgent d’idées en tout genre pour vous permettre de gagner le moindre pouce d'espace. Il y en a pour tous les goûts et pour toutes les bourses!